Alloggi condivisi per anziani, nasce il nuovo Umberto I
Montebelluna, iniziati i lavori da 760 mila euro: quattro abitazioni collegate ai servizi della casa di riposo

Partiti lunedì mattina i lavori di ampliamento dell’Umberto I di Montebelluna. Ad aggiudicarsi la gara d’appalto la ditta Costruzioni Innovative Srl di Paese per un importo di 760.140,79 euro. Previsto entro fine marzo l’abbattimento dell’ala est, la parte più datata della struttura, e la successiva realizzazione di 4 alloggi cohousing, con uno spazio comune.
L’opera è realizzata in larga parte con fondi europei legati al Programma Regionale (PR) Veneto FESR 2021-2027, per un importo di 572.267 euro. La somma rimanente è a carico dell’ente. La conclusione lavori è prevista entro fine 2026. Il direttore dell’Umberto I, Marco Giacon: “Nuovi spazi per una modalità di residenza innovativa, che amplia ulteriormente l’offerta del centro di servizi”.
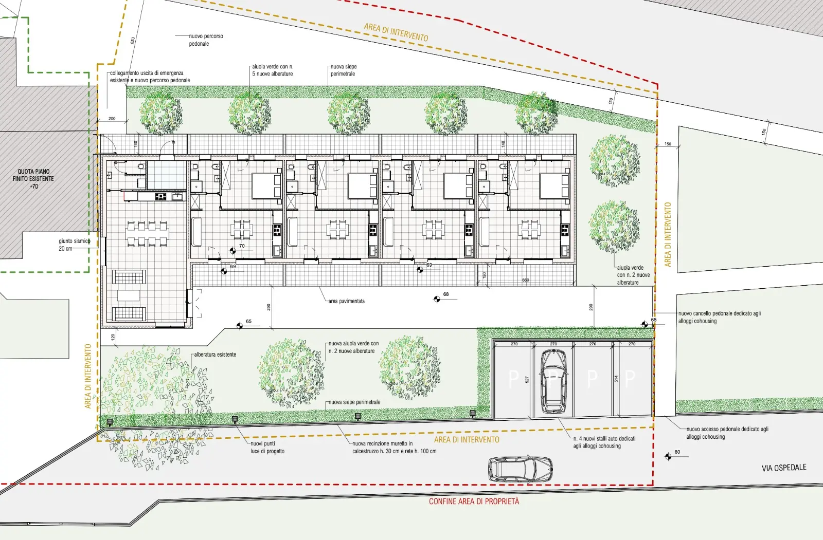
Si parte con la demolizione della porzione più datata dell’Umberto I, l’ala est costruita negli anni Trenta del Novecento, per lasciare spazio alla realizzazione di un nuovo edificio destinato ad alloggi in cohousing. La nuova struttura sorgerà nella stessa area e avrà una superficie coperta di 224 metri quadrati, per un volume complessivo di circa 600 metri cubi, sviluppandosi interamente a piano terra. All’interno saranno ricavati quattro appartamenti in formula cohousing, ciascuno della superficie di 45 metri quadrati.

Ogni unità abitativa comprende una zona giorno con cucina e soggiorno di 21 metri quadrati, un disimpegno di 5 metri quadrati, un bagno di 4,5 metri quadrati dotato di doccia attrezzata e una camera matrimoniale di 14 metri quadrati. Tutti gli alloggi avranno accesso indipendente dal lato sud dell’edificio. Ciascun alloggio potrà ospitare 2 persone, per un totale di 8 inquilini. Sul lato ovest verrà realizzato il cosiddetto “Spazio Cohousing”, un ambiente condiviso destinato alla socialità: una sala comune con cucina di circa 50 metri quadrati, affiancata da un bagno con lavanderia di 4 metri quadrati. Anche questo spazio sarà dotato di un ingresso autonomo dal lato sud. Nel complesso sarà inoltre presente un locale tecnico di 6 metri quadrati.
Gli alloggi sono progettati per accogliere persone in situazione di fragilità: per questo motivo saranno completamente privi di barriere architettoniche e organizzati con spazi funzionali e facilmente accessibili, in modo da facilitare gli spostamenti degli abitanti. All’esterno è prevista una fascia verde sui lati sud, est e nord, composta da prato e da una siepe lungo il perimetro; sul lato ovest, invece, il nuovo fabbricato sarà direttamente collegato al corpo centrale dell’Umberto I.

I futuri residenti potranno inoltre usufruire di diversi servizi offerti dal Centro di servizi, tra cui la consegna di pasti caldi, l’assistenza infermieristica o socioassistenziale e il servizio di lavanderia. Sarà installato anche un sistema di richiesta di aiuto con allarme nei bagni. Saranno altresì coinvolti nella vita della comunità dell’Umberto I, partecipando, se lo vorranno, ad attività, laboratori ed eventi organizzati dalla struttura.
I lavori saranno ultimati entro fine anno, l’apertura è prevista nei primi mesi del 2027, anno in cui ricorre anche il 120° anniversario dell’Umberto I, fondato nel 1907. La realizzazione del nuovo blocco di alloggi cohousing prosegue sulla linea dell’implementazione della struttura dell’Umberto I, dopo l’intervento di ampliamento completato nel 2024 con l’apertura di una nuova ala ospitante 52 residenti non autosufficienti, e da ultimo il nuovo Centro Diurno Agorà, inaugurato nella primavera 2025, con capienza di 20 posti.
“Con questo intervento compiamo un ulteriore passo nel percorso di sviluppo dell’Umberto I, ampliando la nostra offerta con una soluzione abitativa che risponde a nuovi bisogni del territorio – spiega il direttore dell’Umberto I, Marco Giacon – Il cohousing rappresenta una modalità innovativa di residenza, pensata per persone che desiderano mantenere la propria autonomia pur potendo contare su un contesto protetto e su servizi di supporto. Realizzare questi nuovi spazi significa investire in un modello di accoglienza più flessibile, che favorisce la socialità, la qualità della vita e la permanenza delle persone nel proprio contesto di comunità”.
La Casa di Ricovero Umberto I viene fondata nel 1907 per volere di un gruppo di cittadini di Montebelluna, attraverso una sottoscrizione popolare per creare un luogo di ricovero dove alimentare, curare e vestire “gratuitamente”, entro i limiti delle proprie rendite, i poveri dell’epoca. Oggi il Centro di servizi Umberto I accoglie 112 residenti non autosufficienti suddivisi in 4 nuclei, di cui uno protetto da 22 posti. Nell’ultimo decennio il raggio d’azione della struttura si è ulteriormente sviluppato fornendo servizi diversificati. Il servizio di Cohousing - Villaggio Protetto, un insediamento di unità abitative, organizzate come “comunità di vicinato” con 17 minialloggi a schiera, tutti a piano terra, da 2 posti letto ciascuno, e capacità complessiva di 34 coabitanti. Il Centro Diurno Agorà, recentemente qualificato, in grado di accogliere 20 anziani non autosufficienti, anche con demenza, Alzheimer o disturbi del comportamento.
Riproduzione riservata © Tribuna di Treviso








